Quadrilocale in affitto

Montalto Uffugo, Via Salerni - Settimo
€ 500 / mese
4 locali 4 locali
99 Mq 99 Mq
2 bagni 2 bagni

Quadrilocale in affitto

Montalto Uffugo, Via Salerni - Settimo

Descrizione annuncio

SETTIMO

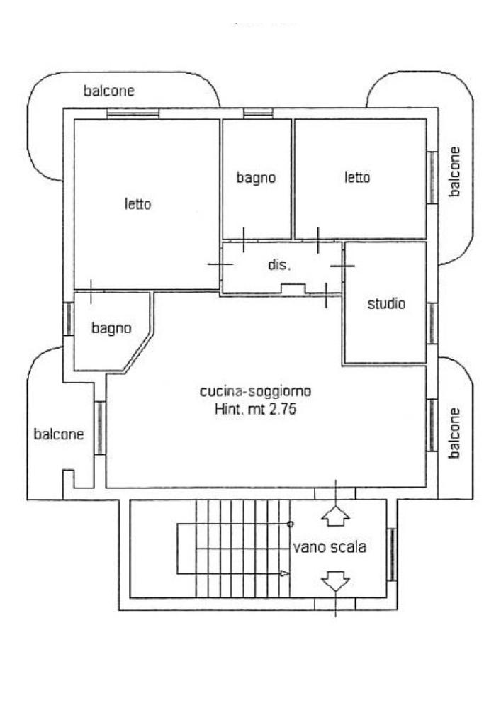
Appartamento non arredato in affitto – Secondo piano, zona Via Salerni – Settimo

In posizione centrale e comodamente servita, proponiamo in vendita un appartamento non arredato situato al secondo piano di una palazzina ben tenuta nella zona di Via Salerni, a Settimo.

L’immobile, caratterizzato da ottima luminosità grazie alla tripla esposizione, offre spazi funzionali e ben distribuiti:

Zona giorno in ambiente unico, ampia e versatile;

Due camere da letto di generose dimensioni;

Comodo studio, ideale come stanza lavoro o spazio hobby;

Due bagni entrambi con finestra, di cui uno ad uso esclusivo della camera matrimoniale.

A completare la proprietà troviamo ben quattro balconi, che garantiscono aria, luce e piacevoli affacci su diversi lati dell’edificio.

Soluzione ideale per chi cerca ampiezza, luminosità e una posizione centrale, a pochi passi da servizi, negozi e collegamenti.

Mostra tutto

Nelle vicinanze

Trasporto pubblico Trasporto pubblico
Consorzio Autolinee
Consorzio Autolinee
290 m
4
4
2,8 Km
Scuole Scuole
Scuola
590 m
TechNest
2,6 Km
Scuole
2,6 Km
Cubo 45A-46A
2,7 Km
Cubo 45A
2,7 Km
Farmacia Farmacia
Farmacia Peluso
1,2 Km
Bar Bar
Bar Trieste
250 m
Ristoranti Ristoranti
Ristorante Pizzeria La Ciambotta
260 m
Da Mario
2,4 Km
Le Casette di Zio Rocco
2,4 Km
Mostra tutto

Caratteristiche

Rif.:
61142519
Piano:
2 di 4 (Piano medio)
Posti auto:
1
Balconi:
4
Camere da letto:
3
Arredamento:
Assente
Mostra tutto
Prezzo Prezzo
€ 500 / mese
Spese annue Spese annue
€ 216

Classe Energetica

D
D
D
D
D
D
D
D
D
EP globale non rinnovabile:
96.56 kW h/m² anno
EP globale rinnovabile:
11.37 kW h/m² anno
EP invernale del fabbricato:
EP estiva del fabbricato:
Anno di costruzione:
2011
Riscaldamento:
Autonomo
Tipo impianto:
A radiatori
Tipo alimentazione:
GPL

Ti interessa visionare l'immobile?

Fissa un appuntamento  Fissa un appuntamento

Richiedi informazioni

Clicca su Leggi per aprire l'informativa
* Questi campi sono obbligatori
Affiliato
Studio Montalto Srl
Via Verdi, 107 87040 Montalto Uffugo (CS)

Il nostro staff


  • Pino Gallo
    Affiliato

  • Fabrizia Famele
    Coordinatrice

  • Antonio Passarelli
    Responsabile

  • Santo Bartucci
    Collaboratore

  • Samantha Cufone
    Coordinatrice

  • Riccardo Palermo
    Collaboratore
Via Verdi, 107 87040 Montalto Uffugo (CS)
Zona: Taverna di Montalto U. - Settimo - Bivio Rose
Mostra su mappa
Orari: dal lunedì al venerdì 8:30 - 13:00/15:00 - 19:30; sabato 8:30 -13:00
Affiliato
Studio Montalto Srl
Via Verdi, 107 87040 Montalto Uffugo (CS)

2026 Tecnocasa Franchising S.p.A. - P. IVA 08365160152 - Via Monte Bianco 60/A 20089 Rozzano (MI). Ogni agenzia ha un proprio titolare ed è autonoma. Privacy policy | Policy utilizzo | Cookie policy