Casa indipendente in vendita

Luzzi, Contrada Risicoli
€ 57.000
3 locali 3 locali
183 Mq 183 Mq
1 bagno 1 bagno

Casa indipendente in vendita

Luzzi, Contrada Risicoli

Descrizione annuncio

BIVIO DI LUZZI - Il tuo angolo di tranquillità in Località Risicoli.

Se sogni una casa indipendente, lontana dal caos,dai forma alla casa che hai sempre immaginato...

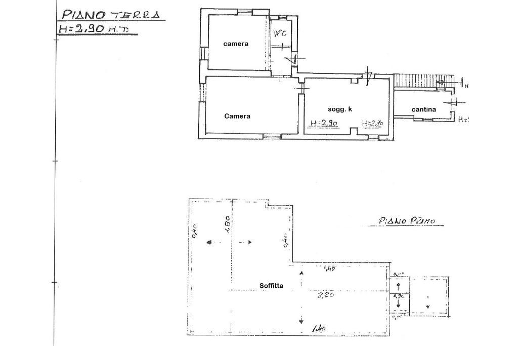
Nel cuore della tranquilla località Risicoli, proponiamo una casa indipendente su unico livello di circa 95 mq, immersa nella quiete e circondata da una corte privata di circa 600 mq: uno spazio ampio, da vivere e personalizzare secondo i tuoi desideri.

Immagina un giardino curato, un’area relax, uno spazio per i bambini o per i tuoi animali… qui hai tutto lo spazio per realizzarlo.

Distribuzione interna: l’immobile si presenta allo stato originale e necessita di una ristrutturazione, offrendo così la possibilità di modellare gli ambienti secondo il tuo gusto e le tue esigenze.

Attualmente è composto da:

Zona giorno con cucina e camino

Due camere da letto

Un bagno

Adiacente all’abitazione troviamo una comoda cantina, mentre la soffitta sovrastante, raggiungibile tramite scala esterna, rappresenta un ulteriore spazio utile come deposito o ambiente da valorizzare.

Posizione: la casa si trova a pochi chilometri dal Bivio di Luzzi, dove sono presenti tutti i principali servizi di prima necessità: supermercato, farmacia, ufficio postale e negozi di vario genere.
Una posizione che unisce comodità e tranquillità.

Le case indipendenti con ampi spazi esterni sono sempre più richieste… e sempre più rare. Questa proprietà rappresenta un’opportunità concreta per chi desidera investire su sé stesso, creare valore e realizzare una casa davvero la giusta ristrutturazione può trasformarsi in una soluzione accogliente, funzionale e perfettamente in linea con le esigenze moderne, mantenendo il fascino dell’indipendenza e la comodità dei servizi a pochi minuti. Non aspettare. Contattaci oggi stesso per maggiori informazioni o per prenotare una visita.
Potrebbe essere l’inizio del tuo nuovo progetto di vita.

Mostra tutto

Nelle vicinanze

Trasporto pubblico Trasporto pubblico
Trasporto pubblico
2,0 Km
Scuole Scuole
Scuola Media
1,2 Km
Scuola dell'infanzia San Francesco
1,9 Km
Ospedali Ospedali
Poliambulatorio
1,8 Km
Mostra tutto

Caratteristiche

Rif.:
61173980
Piano:
Terra con giardino
Posti auto:
3
Camere da letto:
2
Arredamento:
Assente
Condizionamento:
Assente
Mostra tutto
Prezzo Prezzo
€ 57.000
Rata mutuo Rata mutuo
€ 272 / mese
Spese annue Spese annue
€ 0
Proponi il tuo prezzoProponi il tuo prezzo

Classe Energetica

Questo immobile è esente da classe energetica
Anno di costruzione:
1967
Riscaldamento:
Autonomo
Tipo impianto:
A radiatori
Tipo alimentazione:
GPL

Ti interessa visionare l'immobile?

Fissa un appuntamento  Fissa un appuntamento

Richiedi informazioni

Clicca su Leggi per aprire l'informativa
* Questi campi sono obbligatori

Calcola il tuo mutuo

Semplice e senza impegno
Anticipo

( % )
Mutuo

( % )

pochi semplici passi

inserisci i tuoi dati
Questionario completato
Grazie per aver richiesto un appuntamento senza impegno con un nostro Consulente del Credito e Assicurativo.

Hai inserito correttamente tutti i dati necessari e a breve riceverai una e-mail con un link da convalidare per inviare i tuoi dati.
Affiliato
Studio Montalto Srl
Via Verdi, 107 87040 Montalto Uffugo (CS)

Il nostro staff


  • Pino Gallo
    Affiliato

  • Fabrizia Famele
    Coordinatrice

  • Antonio Passarelli
    Responsabile

  • Santo Bartucci
    Collaboratore

  • Samantha Cufone
    Coordinatrice

  • Riccardo Palermo
    Collaboratore
Via Verdi, 107 87040 Montalto Uffugo (CS)
Zona: Taverna di Montalto U. - Settimo - Bivio Rose
Mostra su mappa
Orari: dal lunedì al venerdì 8:30 - 13:00/15:00 - 19:30; sabato 8:30 -13:00
Affiliato
Studio Montalto Srl
Via Verdi, 107 87040 Montalto Uffugo (CS)

2026 Tecnocasa Franchising S.p.A. - P. IVA 08365160152 - Via Monte Bianco 60/A 20089 Rozzano (MI). Ogni agenzia ha un proprio titolare ed è autonoma. Privacy policy | Policy utilizzo | Cookie policy