5 locali in vendita

Luzzi, Contrada Cavoni
€ 100.000
5 locali 5 locali
207 Mq 207 Mq
2 bagni 2 bagni

5 locali in vendita

Luzzi, Contrada Cavoni

Descrizione annuncio

LUZZI - CONTRADA CAVONI

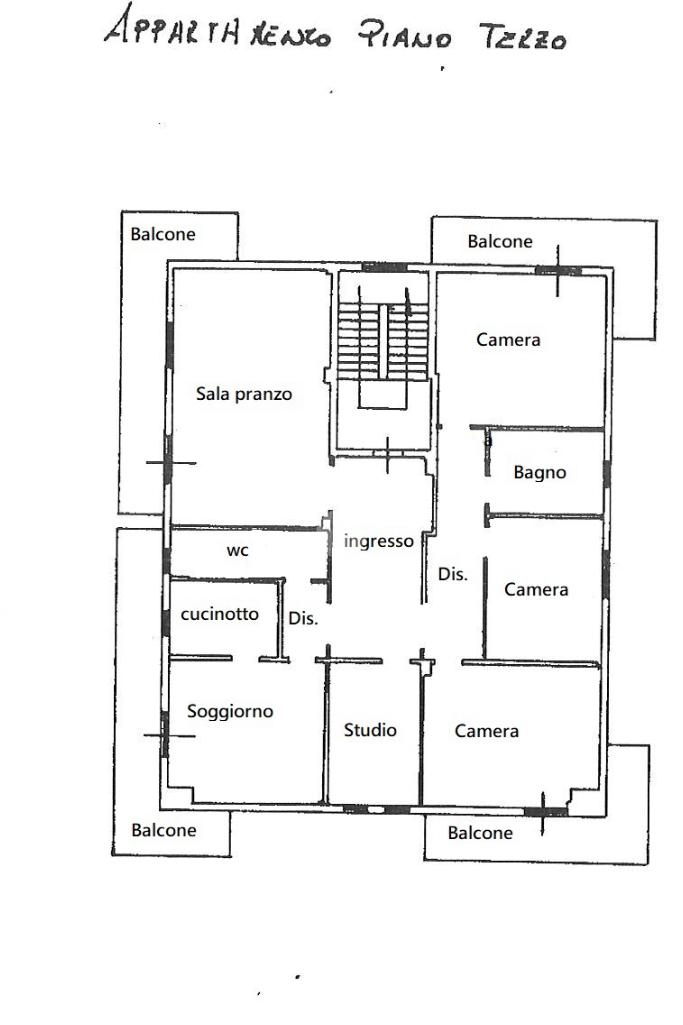
Ampio appartamento di 207 mq.

Nel cuore della zona di Luzzi – Contrada Cavoni, lungo la strada principale e in posizione comoda per raggiungere ogni servizio, proponiamo in vendita un appartamento di ampia metratura, ideale per chi desidera vivere in spazi generosi e ben distribuiti.

L’immobile si trova al terzo piano di una palazzina tranquilla e occupa l’intero piano, offrendo così massima privacy e una luminosità naturale grazie all' esposizione e ai quattro balconi che circondano l’abitazione.

L’ingresso introduce a una zona giorno ampia e accogliente, composta da una sala da pranzo e da un soggiorno con camino, perfetto per trascorrere momenti di relax in famiglia. Il cucinotto è separato e funzionale, con affaccio su uno dei balconi.

La zona notte ospita tre camere da letto spaziose, ideali per garantire comfort e riservatezza a tutti i membri della famiglia. Presenti due bagni, entrambi con finestra: uno dotato di doccia, l’altro di vasca, entrambi curati e pratici nella disposizione.

Completano la proprietà uno studio, perfetto come ambiente jolly o per chi lavora da casa, e quattro balconi che regalano piacevoli affacci esterni e un’ottima ventilazione in tutti gli ambienti.

La posizione, sulla via principale di Contrada Cavoni, rende l’appartamento comodo a scuole, negozi, mezzi pubblici e servizi di prima necessità, pur mantenendo un contesto residenziale e riservato.

Un’abitazione che unisce spazio, comfort e praticità, perfetta per chi cerca una casa accogliente e funzionale, pronta per essere personalizzata secondo il proprio gusto.

Mostra tutto

Nelle vicinanze

Trasporto pubblico Trasporto pubblico
Trasporto pubblico
2,4 Km
Scuole Scuole
Scuola Media
1,8 Km
Scuola dell'infanzia San Francesco
2,4 Km
Ospedali Ospedali
Poliambulatorio
2,3 Km
Negozi Negozi
Malizia
2,6 Km
Pan C
2,6 Km
Mostra tutto

Caratteristiche

Rif.:
61137990
Piano:
3 di 3 (Piano alto)
Balconi:
4
Camere da letto:
3
Arredamento:
Assente
Condizionamento:
Autonomo
Mostra tutto
Prezzo Prezzo
€ 100.000
Rata mutuo Rata mutuo
€ 477 / mese
Spese annue Spese annue
€ 0
Proponi il tuo prezzoProponi il tuo prezzo

Classe Energetica

Questo immobile è esente da classe energetica
Anno di costruzione:
1986
Riscaldamento:
Autonomo
Tipo impianto:
A radiatori
Tipo alimentazione:
GPL

Ti interessa visionare l'immobile?

Fissa un appuntamento  Fissa un appuntamento

Richiedi informazioni

Clicca su Leggi per aprire l'informativa
* Questi campi sono obbligatori

Calcola il tuo mutuo

Semplice e senza impegno
Anticipo

( % )
Mutuo

( % )

pochi semplici passi

inserisci i tuoi dati
Questionario completato
Grazie per aver richiesto un appuntamento senza impegno con un nostro Consulente del Credito e Assicurativo.

Hai inserito correttamente tutti i dati necessari e a breve riceverai una e-mail con un link da convalidare per inviare i tuoi dati.
Affiliato
Studio Montalto Srl
Via Verdi, 107 87040 Montalto Uffugo (CS)

Il nostro staff


  • Pino Gallo
    Affiliato

  • Fabrizia Famele
    Coordinatrice

  • Antonio Passarelli
    Responsabile

  • Santo Bartucci
    Collaboratore

  • Samantha Cufone
    Coordinatrice

  • Riccardo Palermo
    Collaboratore
Via Verdi, 107 87040 Montalto Uffugo (CS)
Zona: Taverna di Montalto U. - Settimo - Bivio Rose
Mostra su mappa
Orari: dal lunedì al venerdì 8:30 - 13:00/15:00 - 19:30; sabato 8:30 -13:00
Affiliato
Studio Montalto Srl
Via Verdi, 107 87040 Montalto Uffugo (CS)

2026 Tecnocasa Franchising S.p.A. - P. IVA 08365160152 - Via Monte Bianco 60/A 20089 Rozzano (MI). Ogni agenzia ha un proprio titolare ed è autonoma. Privacy policy | Policy utilizzo | Cookie policy